-
萬達機械
·精細篩分設備
WANDA MACHINERY
一、產品簡介
GLS概率篩適用于輕工、化工、制藥、食品、糧食、礦產等行業粉狀、顆粒狀、塊狀物料的篩分作業,是一種能動地利用概率篩分原理的篩分機械,生產能力大、效率高,可以對機制砂或天然砂進行多級分級,篩選的目數:5MM~2.36MM~1.2MM~0.6MM,部分特殊砂漿已經篩分到0.3MM~0.15MM~0.075MM。國外將此種設備稱為MOGENSEN(摩根森)篩,是篩選工藝中產量最大的一種篩分設備。
二、工作原理
概率篩與普通篩明顯的差別是采用了概率篩分的原理,多層篩網(一般為3-6層)、大傾角(一般為15-30度)、大篩孔(篩孔尺寸為分離粒度的2-10倍),從而以很快的速度完成整個篩分過程,其單位面積篩網處理能力比普通篩大5-10倍。概率篩的振動源是由兩臺旋轉方向相反的振動電機自同步產生的直線振動力,帶動箱體做直線振動,物料在網面做拋擲運動向前移動。選擇合理的振動幅度可以保證物料篩分精度高的同時保證產量最大化。
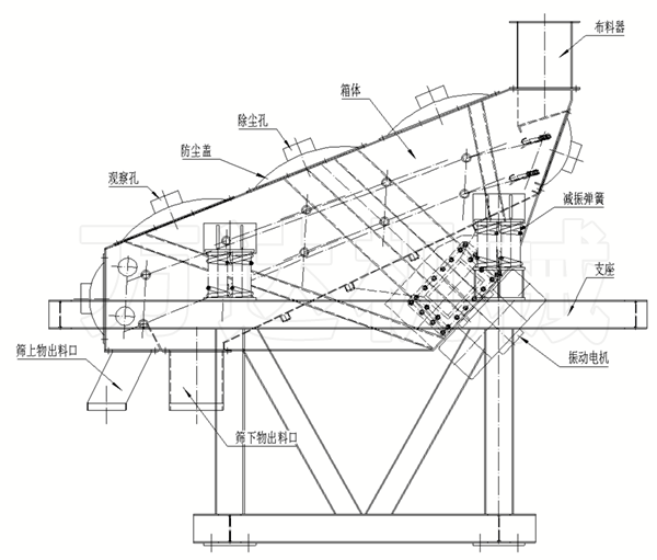
三、設備結構
四、激振力調節
振動電機激振力的大小影響著篩體的振動幅度的大小,以致影響到物料篩分精度和產量,不同物料所需的振幅情況也不相同,用戶應根據實際使用情況選擇最佳激振力。
調整激振力應按下列步驟:
Ⅰ、取下兩側的防護罩;Ⅱ松開外調整板螺栓,按同一方向擰動外調整板,外調整板上有顯示激振力的刻度線,對準轉子軸的刻度線,取得理想的激振力;Ⅲ、重新擰緊外調整板上螺栓;Ⅳ、裝上兩側的防護罩。
注意:振動電機兩端的調整板必須定在同一值,如不相等,會產生橫向力,損壞電機及設備。
五、注意事項
1、篩機的安裝基礎必須經水平儀找平,四支點高度誤差控制在3毫米以內,以保證篩機工作起來平穩,安裝基礎要有足夠的強度和剛度來承受篩機運行時的綜合載荷。
2、篩機吊裝時吊扣掛在篩箱指定位置(一般彈簧座上預留吊裝孔),以免吊繩勒壞其它部位;吊裝過程要平穩,避免碰撞和墜落。
3、篩機支座與基礎連接牢固(螺栓連接或焊接)。
4、開機前必須檢查好篩機各部分安裝是否正確齊全,進出料口是否與其它設備軟連接連接,各部緊固螺栓是否緊固牢靠。
5、檢查篩網是否有破損、平整、拉緊,篩網拉緊要均勻,如不均勻可調節拉網鉤板上的螺栓,篩網不均勻拉緊將影響篩網的使用壽命,檢查篩網兩邊的硅膠板,網拉緊后兩側的硅膠板與側板自然貼緊,如不貼緊將影響篩分質量。
6、檢查電機螺栓是否緊固,檢查電機防護罩是否變形,檢查電機偏心塊是否旋轉無卡阻。
7、電器箱各控制元件應動作靈活自如。
8、開機前參振部件上的物品清理干凈,以免開機時飛物傷人。
9、點觸開關,啟動振動電機,使兩臺振動電機作相對旋轉運動,觀察參振部分有無異?,F象。各方面裝備工作完善無誤后,方能進行試轉運行。
10、篩子開機和關機時會有較大幅度的振動,這是篩機過共振區的共振現象,不影響使用。
11、接上電源線,其電壓、熔斷器和開關應相符無誤;電源線接缺相保護器和斷電保護器,設備接地線保護。
12、試轉運行時間不小于8小時,通過視聽觸對篩子作進一步檢查,篩子啟動時應平穩迅速,工作振動應穩定可靠,并無特殊異聲和噪音;檢看布料器布料是否均勻(因物料特性不同,布料孔排布不同),如若布料不均勻,請改善布料孔排布。
13、啟動平穩、迅速、無明顯橫向擺動。
14、連續運行8小時,檢查軸承溫度,溫度不得超過85攝氏度。
15、試運行時檢查電機電流是否超過額定值,三相電流和三相電壓是否平衡。
16、運轉8小時后應檢查篩子所有緊固螺栓是否有松動現象,如有松動,應重新擰緊。
關于概率篩、旋振篩、直線篩、搖擺篩、平面回轉篩、超聲波振動篩、真空上料機、除塵器等更多詳情,可隨時詳詢萬達機械專業人員!
- 齊心協力,再創佳績-萬達機械年會盛典圓滿落幕... 2024-02-07
- 新鄉舉辦2023中原農谷首屆振動機械產業博覽會... 2023-08-26
- 2022中國(新鄉)振動篩分產業博覽會圓滿閉幕... 2022-09-06
- 超聲波振動篩與搖擺篩兩位同學的對話采訪... 2022-07-02
- 回轉篩與推拉篩到底一樣不一樣... 2022-06-24
- 圓形搖擺篩安裝調試注意事項... 2022-06-22
- 搖擺篩受歡迎的原因是它的優勢很突出... 2022-06-20
- 搖擺篩為啥能在市場上取得良好的表現... 2022-06-17
- 搖擺篩跟振動篩比有啥不一樣的優勢... 2022-06-15






豫公網安備 41071102000230號